Single Family Home - Rating 4.8 (12 Reviews)

IR16: Harmony House


Bedroom 3 bedrooms
Bathroom 2 full
Guests 6 guests
Pets Not Allowed Pets Not Allowed
Flexible Dates Saturday

  • Address: 34 Central Drive
  • Location: Irvin Garrish
  • Type: Single Family Home

Description Description
New for 2026! Kitchen floors, new doors, and a newly constructed deck!

Let the soothing calm of Ocracoke fill your spirit in this comfortable home. A light and airy feelings are prevalent with wall-to-wall carpeting in a neutral color and high ceilings. Enjoy a leisurely afternoon on the furnished screened porch or on the newly constructed front deck. Harmony House offers easy walking distance to village activities, shops, galleries, and restaurants.

3 Bedrooms, 2 Baths: Primary Bedroom with King, 1 with Double, 1 with 2 Twin Beds. Primary Bath with walk-in shower. The hallway bath has a tub/shower.

Amenities include central air conditioning/heat, ceiling fans, complimentary wireless Internet access, and satellite TV. Washer and dryer.

The exterior offers a hot/cold outdoor shower, screened porch, sun deck, and fish cleaning bench.

*This home does not provide linens.

No Smoking/Vaping. No Pets Allowed. Maximum 3 vehicles.

Military Discount Available. Discount can only be applied at the time of booking.

NO CITY WATER - Treated Well Water, Non-Potable.

Short Stays are available; there is a three-night minimum, and these stays can be booked within two weeks of arrival.

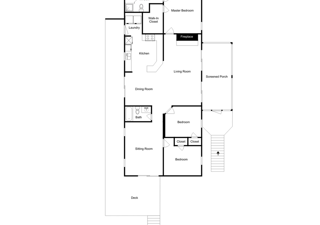
Property Layout:

Single story home: Open kitchen, dining, and living area with TV/DVD. Den. Primary Bedroom with King and Primary Bath with walk-in shower. Bedroom with Double and a bedroom with two twin beds. Full bath with tub/shower. Laundry area.

Availability Calendar Availability Calendar
Clear Dates

Bedding Bedding
User User User
Bedroom 3
1 Twin
1 Twin

User User
Bedroom 2
1 Double

User User
Primary Bedroom
1 King

Attached Bathroom


Amenities 26 Amenities
  • No Grill
Area
  • Irvin Garrish
Bed & Bath
  • No Linens Provided
Featured Amenities
  • King Bed
  • Primary Bedroom w/ Private bath
Indoor Amenities
  • Ceiling Fans
  • Central Air
  • Central Heat
  • TV
  • Washer/Dryer
Informational
  • Featured Property
  • Partial Stays
Internet
  • Complimentary Internet Access
Kitchen & Dining
  • Dining Table
  • Dishwasher
  • Kitchen
  • Microwave
  • Refrigerator
Outdoor Amenities
  • Deck
  • Fish Cleaning Table
  • Outdoor Shower
  • Screened Porch
Pets
  • Pets Not Allowed
Property Features
  • Smoking and Vaping Not Allowed
Property Type
  • House
Turn Day
  • Saturday

Location Save 10% on 3+ Night Stays with our Almost Summer Sale!

Escape to Ocracoke before summer officially starts with our Almost Summer Sale. Book a 3+ night stay between April 20 and June 5 and enjoy 10% off using promo code ALMOSTSUMMER. Travel between May 9 and June 6 to soak up warm days, cool evenings, and that laid-back “before the crowds” island feel on the Pearl of the Outer Banks.


*Offer is valid on new online bookings when you book by June 5, 2026, to receive up to 10% off for 3+ night stays from April 20, 2026 - June 6, 2026. Cannot be combined with other offers. Exclusions and restrictions may apply to select properties.



Location Secure Your Getaway Now and Save 8%

Enjoy added peace of mind when planning your Summer or Fall getaway. For a limited time, receive 8% off* when you book 7+ nights between June 6th and December 31st, 2026, making it easier to protect your trip with Red Sky Travel Insurance, available for 7.95% of your reservation total. Use promo code STAYSAFE at checkout. Offer expires December 31, 2026. 

 


*Offer is valid on new online bookings when you book by December 31, 2026, to receive up to 8% off for 7+ night stays from June 6, 2026, to December 31, 2026. Discount cannot be combined with other promotions. Exclusions and property restrictions may apply.



Location Location

Reviews Rating 4.8 (12)
Rating 4
Fine!
- Reviewed On: 7/22/2025
- Check Out On: 7/19/2025
Thank you for your feedback. We're glad you had an enjoyable stay and hope to welcome you back in the future.
Ocracoke Island Realty staff
Rating 5
Absolutely love the Harmony house. My daughter's (age 5 and 8) loved seeing all the tree frogs at night. The king made was so comfy I want the matress for my house lol. Since my husband and is friends are anglers it was nice to have the keyless entry so they could do what they wanted and me and the girls could venture around the island. We had a great time.
- Reviewed On: 8/18/2024
- Check Out On: 8/17/2024
Rating 5
House was clean and a great location to everything. Kitchen had essentials needed to cook. We pick a different house every year but this one is definitely one we'd consider again.
- Reviewed On: 7/31/2024
- Check Out On: 7/27/2024
Rating 5
We have used OIR many times and have never been disappointed. Our stay was great !!
- Reviewed On: 7/21/2024
- Check Out On: 7/20/2024
Rating 5
The house was clean and homey. Not the fanciest we have ever stayed in but it was roomy and comfortable. The outside porch screens need repair as do the outside decks (many, many nails poking up). We liked the yard and swing in the front. Beds and furniture were comfortable. The clothes washer does not work on all settings, but got the job done. My grandson loved seeing all the tree frogs that came to the windows at night. There was an active wasp nest in the bell beside the entry door to the screened porch, but we found some spray and sprayed it - nobody got stung.
- Reviewed On: 6/9/2024
- Check Out On: 6/8/2024
Rating 5
Very clean and each year the owner continues to upgrade
- Reviewed On: 5/5/2024
- Check Out On: 5/4/2024
Rating 5
Ocracoke West End House
The check in process for this property was seamless. Upon arrival, the property exceeded our expectations due to the fact that the family had sufficient space for personal items and comfortable sleeping arrangements. Two full bathrooms and two spaces for seating were also beyond our expectations and appreciated. The kitchen had all the functionality we needed for daily meals, which we ate most of our meals at this home. I would also recommend this property for those visiting this area primarily for access to beaches. The bike ride, which bikes were conveniently stored in a covered basement type room, was very easy from the main road onto the dedicated bike/hike path. I plan to stay on this property again if we return to Ocracoke and it is available.
- Reviewed On: 10/9/2023
- Check Out On: 10/6/2023
Rating 5
Awesome house
- Reviewed On: 8/20/2023
- Check Out On: 8/19/2023
Rating 5
Harmony House was wonderful! Walking distance to Variety Store, 1718 Brewery, and Howard’s Pub. Quiet street. Kitchen was fully stocked.
- Reviewed On: 7/30/2023
- Check Out On: 7/29/2023
Rating 4
The house had a great layout and good amenities. The bedroom and bathroom suite was amazing! However, the beds in the other 2 bedrooms had terrible mattresses. I know mattresses are a matter of personal preference but these were extremely soft and pushed you to the middle of the bed. A couple can not sleep in the full bed, one of us took turns in the bunk bed room with our kids which was disappointing. The wifi was also very slow. Everything else was great and we very much enjoyed our stay but a decent mattress really is important especially for a longer stay.
- Reviewed On: 7/9/2023
- Check Out On: 7/8/2023
Rating 5
My family and I really enjoyed our stay at Harmony House
- Reviewed On: 6/11/2023
- Check Out On: 6/10/2023
Rating 5
Very clean and convenient location
- Reviewed On: 5/7/2023
- Check Out On: 5/6/2023
Swipe Swipe for More Reviews